Osnovno
- Grad : Bale
- Neto površina : 360 m2
- Površina zemljišta : 3220 m2
- Godina izgradnje : 2021
- Broj soba : 5
- Kupaonice : 6
- Broj etaža : 2
- Klima uređaj
- Spremište
- Bazen
- Jacuzzi
- Sauna
- Terasa
- Parking mjesta : 3
- Novogradnja
- Samostojeća kuća
- Stanje : Kompletno uređeno
Više informacija
Dizajnerska vila suvremenog luksuza u srcu Istre – Bale
U jednom od najšarmantnijih istarskih gradića, poznatom po kamenim ulicama, vinogradima i maslinicima koji ga okružuju, smjestila se ova iznimna dizajnerska vila koja spaja autentičan mediteranski ambijent i vrhunsku suvremenu arhitekturu. Bale, povijesni gradić na zapadnoj obali Istre, udaljen je svega pet kilometara od kristalno čistog mora i netaknute obale, a istovremeno pruža mir, privatnost i ugodan ritam života tijekom cijele godine. Upravo u takvom okruženju, u pitomom i uređenom susjedstvu obiteljskih kuća i vila za odmor, nalazi se nekretnina koja nudi savršen balans između ruralne idile i blizine svih potrebnih sadržaja.
Arhitektura, dizajn i besprijekorna funkcionalnost
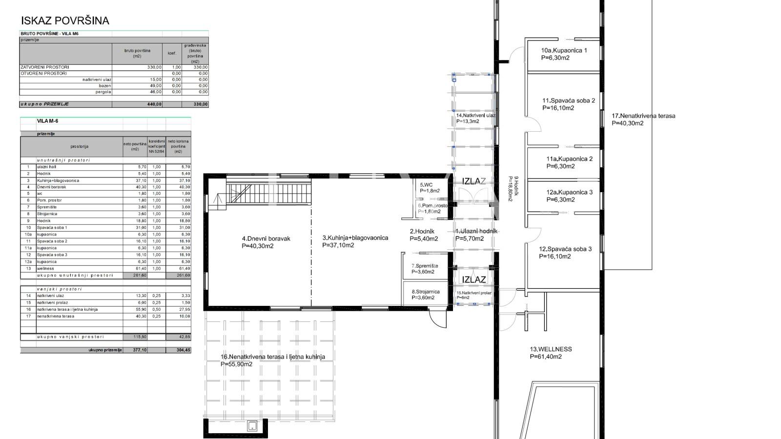
Vila je osmišljena kao skladan spoj estetike, funkcionalnosti i vrhunske gradnje, s jasnim arhitektonskim linijama i bezvremenskim dizajnom koji se prirodno uklapa u krajolik. Razvedena je na dvije etaže, a svaki prostor pažljivo je projektiran kako bi osigurao maksimalnu udobnost, protočnost i obilje dnevnog svjetla. Interijer odiše elegancijom i opremljen je renomiranim dizajnerskim komadima brendova poput Poliforma, Moooi, Artemide i Vitra, čime se dodatno naglašava ekskluzivnost ove nekretnine.
Prizemlje je zamišljeno kao središte svakodnevnog života i opuštanja. Otvoreni dnevni prostor objedinjuje kuhinju, blagovaonicu i prostrani boravak koji se staklenim stijenama nastavlja prema natkrivenoj terasi s pergolom i ljetnom kuhinjom. U istom nivou smještena je i impresivna wellness zona s unutarnjim grijanim bazenom, finskom saunom i kupaonicom, dok tri komforne spavaće sobe, svaka s vlastitom kupaonicom, pružaju potpunu privatnost. Tu su još gostinjski toalet, praonica i tehnička prostorija. Na katu se nalazi galerijski prostor te dodatna spavaća soba s en-suite kupaonicom, idealna kao master suite ili zasebna oaza mira.
Uređena okućnica i investicijski potencijal
Eksterijer vile jednako je dojmljiv kao i interijer. Ograđena parcela hortikulturno je uređena i obiluje zelenilom, stvarajući intimnu atmosferu skrivenog mediteranskog vrta. Središnje mjesto zauzima vanjski bazen površine 40 m² sa sunčalištem, dok natkrivena lounge zona i plitki relaksacijski bazen pružaju savršen prostor za uživanje tijekom toplih dana i večernjih druženja.
Spoj vrhunske lokacije, pažljivo osmišljene arhitekture i luksuznih sadržaja čini ovu vilu idealnim izborom za one koji traže miran i kvalitetan obiteljski dom, ali i sigurnu investiciju s izvrsnim potencijalom turističkog najma u jednom od najtraženijih dijelova Istre.
Postoji opcija izgradnje još 1 vile prema važećoj građevinskoj dozvoli na zemljištu koje se prodaje u ovoj cijeni.
Ako je za ovu nekretninu na nekoj drugoj web stranici objavljena niža cijena ista vrijedi i kod nas.
Za sva dodatna pitanja i razgled nekretnine stojimo Vam na raspolaganju.
U slučaju posla posredovanja naše agencije postoji obveza plaćanja agencijske provizije.
Za ovu nekretninu je kontakt: Ivan, +385 91 288 0082
Lokacija
Nekretnine u blizini
Pogledajte više-
- Prodaja
- Luksuzne vile
- Poreč
Luksuzna vila klasičnog uređenja, Poreč, Istra
511 m2
2.650.000 €
-
- Prodaja
- Luksuzne vile
- Sveta Katarina
Luksuzna vila s bazenom u izgradnji blizu Pazina, Istra
250 m2
950.000 €
-
- Prodaja
- Luksuzne vile
- Plomin
Istra, luksuzna vila s bazenom i pogledom na more u izgradnji
307 m2
Na upit