Osnovno
- Grad : Omišalj
- Neto površina : 78 m2
- Godina izgradnje : 2027
- Broj soba : 3
- Kupaonice : 1
- Kat : 1
- Broj etaža : 1
- Klima uređaj
- Spremište
- U stambenoj zgradi
- Blizu mora
- Terasa
- Parking mjesta : 2
- Novogradnja
- Grijanje : Na struju
Više informacija
Novogradnja u Omišlju – Moderan stan 80 m od mora s dva parkirna mjesta
Smješten na jednoj od najpoželjnijih lokacija u Omišlju, ovaj elegantni stan u novogradnji spaja moderan dizajn, udobnost i neposrednu blizinu mora. Udaljen svega 80 metara od plaže, nudi svakodnevni doživljaj mediteranskog ambijenta – miris mora, šum valova i opuštenu atmosferu idealnu za život, odmor ili dugoročnu investiciju.
Stan se nalazi u kvalitetno građenoj zgradi suvremene arhitekture, s pripadajuća dva parkirna mjesta, što ovu nekretninu čini posebno praktičnom i atraktivnom opcijom.
Prostran i skladan interijer – moderno uređen za maksimalnu udobnost
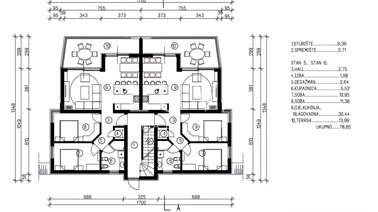
Stan ima ukupnu površinu 78,75 m2, sastoji se od:
Hall (ulazni prostor) – 2,75 m²
Izba (ostava) – 1,08 m²
Degazman (hodnik) – 2,64 m²
Kupaonica – 5,52 m²
Soba (spavaća) – 10,95 m²
Soba (spavaća) – 11,38 m²
Dnevni boravak, kuhinja i blagovaonica – 30,44 m²
Terasa – 13,99 m²
Atraktivna investicija – novogradnja s dva parkirna mjesta
Stan dolazi s dva privatna parkirna mjesta, što je iznimna prednost, posebno u ljetnim mjesecima i u blizini mora.
Cijela zgrada je novogradnja vrhunske kvalitete – što garantira dugotrajnost, energetske uštede i minimalne buduće troškove održavanja.
S obzirom na lokaciju, raspored i blizinu mora, stan je idealan za:
-osobno uživanje
-obiteljski odmor
-dugoročni život
-turistički najam uz visoku isplativost
CIJENA PO APARTMANU:
-Rohbau 4.500€/m2
-ključ u ruke 5.500€/m2
-15% akontacija
-10% popust u pretprodaji ako plan otplate (30-30-40)
-30% prije početka
-30% na završetku roh-bau faze
-40% kod primopredaje (uporabna dozvola)
-20% popust ako plaća 100% unaprijed (prije završetka roh-bau faze)
-Finalna cijena biti će usklađena prilikom etažiranja prema površini
Ako je za ovu nekretninu na nekoj drugoj web stranici objavljena niža cijena ista vrijedi i kod nas.
Za sva dodatna pitanja i razgled nekretnine stojimo Vam na raspolaganju.
U slučaju posla posredovanja naše agencije postoji obveza plaćanja agencijske provizije.
Za ovu nekretninu je kontakt: Lucija, +385 91 577 8229