Osnovno
- Grad : Slatine
- Bruto površina : 71 m2
- Neto površina : 61 m2
- Godina izgradnje : 2026
- Broj soba : 3
- Kupaonice : 1
- Kat : 1
- Broj etaža : 1
- Klima uređaj
- U stambenoj zgradi
- Blizu mora
- Lođa
- Parking mjesta : 1
- Novogradnja
- Orijentacija : Sjever-Jug
- Grijanje : Na struju
- Stanje : Kompletno uređeno
Više informacija
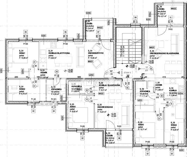
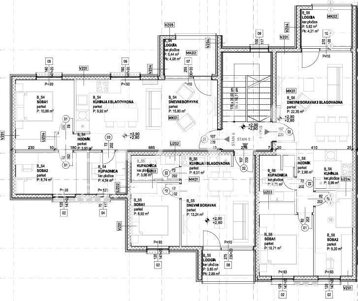
Prodaje se stan S4 u novogradnji, na lijepoj lokaciji s pogledom na more.
U cijenu svih stanova je uključeno JEDNO natkriveno parking mjesto i svaki objekt dobiva na poklon i OSIGURANJE stana na godinu dana (osiguranje od poplave, požara, provale..)!
Stan je lijepo i moderno zamišljen sa sljedećim sadržajem:
Dnevni boravak + Kuhinja = 26.00 m²
Master soba = 10.88 m²
Spavaća soba = 8.74 m²
Kupaonica = 4.49 m²
Lođa = 5.40 m²
Hodnik = 3.93m²
Luksuzni stan s pogledom na more – novogradnja na odličnoj lokaciji
U mirnom i atraktivnom dijelu mjesta, svega 70 metara od plaže, nalazi se moderno projektiran stan u novogradnji koji pruža idealan spoj elegancije, udobnosti i funkcionalnosti.
Zahvaljujući pažljivo osmišljenom rasporedu, stan odiše prostranošću i svjetlošću, dok blizina trgovina i svakodnevnih sadržaja osigurava praktičnost u svakodnevnom životu. U cijenu svakog stana uključeno je jedno natkriveno parkirno mjesto te godišnje osiguranje nekretnine (od poplave, požara, provale i dr.) kao dodatna vrijednost i sigurnost.
Promišljeno uređeni interijer
Stambeni prostor obuhvaća prostrani dnevni boravak povezan s kuhinjom ukupne površine 29.74 m², što stvara idealan ambijent za druženje i opuštanje. Tu su i dvije udobne spavaće sobe – master soba od 11.26 m² te dodatna spavaća soba od 7.5 m², koje omogućuju ugodan boravak i privatnost. Elegantna kupaonica od 4,4 m² opremljena je modernim elementima, dok lođa od 5 m² pruža lijepi vanjski prostor s prekrasnim pogledom na more.
Kvaliteta života na dohvat ruke
Ovaj stan predstavlja izvrsnu priliku za one koji žele živjeti u blizini mora, a istovremeno uživati u udobnosti kvalitetne novogradnje. Plaža je gotovo pred vratima, a svi potrebni sadržaji nalaze se u neposrednoj blizini, što ovu nekretninu čini idealnom i za cjelogodišnje stanovanje i za investiciju u turizam.
Za sva dodatna pitanja i razgled nekretnine stojimo Vam na raspolaganju.
U slučaju posla posredovanja naše agencije postoji obveza plaćanja agencijske provizije.
Za ovu nekretninu je kontakt: Matej, +385 91 288 0083
Lokacija
Nekretnine u blizini
Pogledajte više-
- Prodaja
- Stanovi
- Slatine
Trogir, Slatine, stan S6 62m2 u novogradnji s pogledom na more na prodaju
62 m2
250.000 €
-
- Prodaja
- Stanovi
- Slatine
Trogir, Slatine, stan S8 42m2 u novogradnji s pogledom na more na prodaju
42 m2
175.000 €
-
- Prodaja
- Stanovi
- Slatine
Trogir, Slatine, stan S5 42m2 u novogradnji s pogledom na more na prodaju
42 m2
170.000 €