HR
  • Prodaja
  • Stanovi
  • Zagreb

Zagreb, Gornji stupnik, stan s dvije spavaće sobe u prizemlju, 85,79 m²

85.79 m2

223.054 €

Osnovno

  • Grad : Zagreb
  • Neto površina : 85.79 m2
  • Godina izgradnje : 2026
  • Broj soba : 3
  • Kupaonice : 1
  • Kat : Prizemlje
  • Broj etaža : 1
  • Klima uređaj
  • U stambenoj zgradi
  • Vrt
  • Parking mjesta : 2
  • Novogradnja

Više informacija

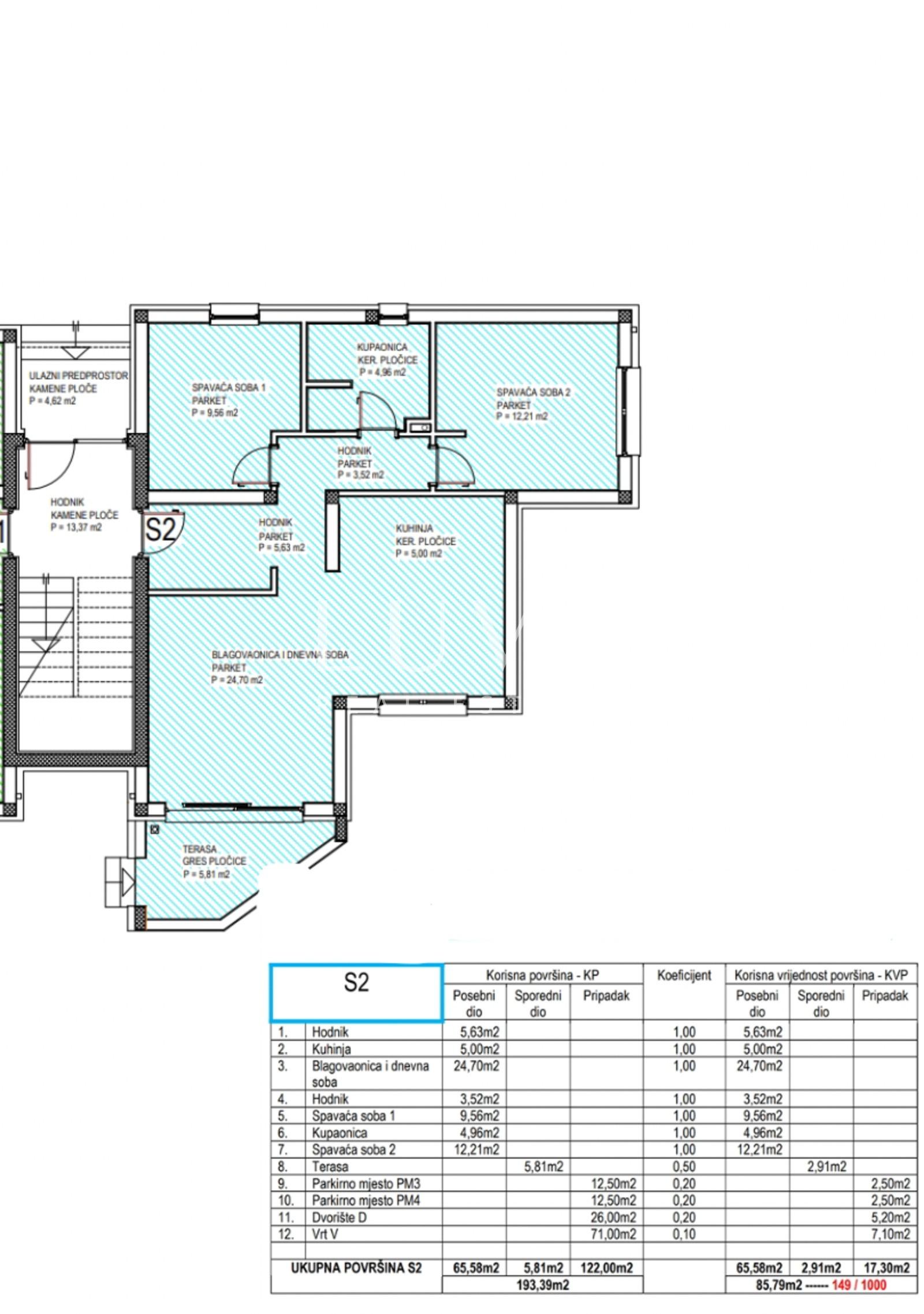
Prodaje se moderan i kvalitetno građen stan smješten u prizemlju manje stambene zgrade u Gornjem Stupniku, ukupne površine 85,79 m², uz koji dolazi i prostrani privatni vrt od 71 m² savršen za uživanje, druženja ili relax zonu po vašoj mjeri.

Raspored stana:

- dvije spavaće sobe
- kuhinja
- hodnik
- dnevni boravak i blagovaonica s izlazom na terasu
- vrt od 71 m²

Stan će imati podno grijanje u svim prostorijama te pripadaju 2 parkirna mjesta.

Lokacija nudi sve što je potrebno za ugodan svakodnevni život.

U neposrednoj blizini nalaze se pošta, Konzum koji je udaljen svega 100 metara, općina i ljekarna, dok se autobusna stanica nalazi direktno preko puta zgrade. Sve ključne usluge i sadržaji dostupni su doslovno na nekoliko koraka, što ovu lokaciju čini iznimno praktičnom i poželjnom za svakodnevno funkcioniranje.

Radi se o novogradnji modernog standarda, a završetak gradnje planiran je krajem 2026. godine.

U slučaju posla posredovanja naše agencije postoji obveza plaćanja agencijske provizije.

Za sva dodatna pitanja i razgledavanje nekretnine stojimo Vam na raspolaganju.

Za ovu nekretninu je kontakt: Vito, +385 91 622 7421

Lokacija