General
- City : Zagreb
- Net area : 1100 m2
- Number of rooms : 19
- Bathrooms : 2
- Floor : 1
- Number of floors : 1
- Air conditioner
- Storage room
- Commercial space location - in a building
- Elevator
- Parking places
More information
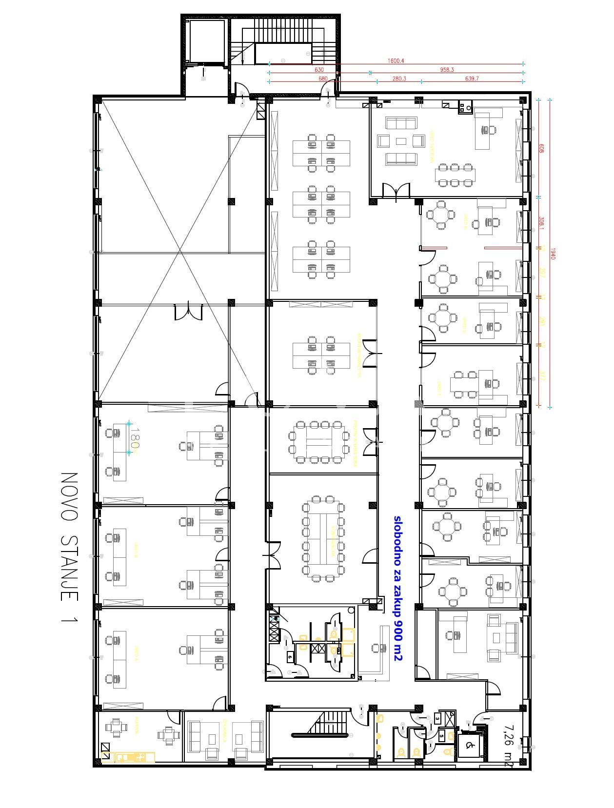
Spacious Office Space for Rent – Ideal for Modern Companies with Vision
Available for rent is a representative office space of 1,100 m², located on the first floor of a commercial building with a large parking area in front.
The property is ideal for office operations, coworking spaces, educational centers, or similar business concepts requiring functionality, flexibility, and comfort.
Its modular layout allows full customization to suit the tenant’s specific needs.
________________________________________
Flexible Layout and Adaptability
The space consists of 16 rooms and three fully equipped meeting rooms. Each room can be partitioned or connected, depending on business requirements.
It is possible to divide the space into a smaller unit of approximately 500 m², making it suitable for smaller companies or departments of larger systems that want to retain functionality and a professional environment.
The offices are bright, airy, and easily accessible, providing a pleasant and productive work atmosphere.
________________________________________
Excellent Location and Competitive Rental Terms
A large parking lot in front of the building ensures plenty of space for employees and clients, making this property particularly convenient for dynamic business operations.
The rental price is 10 EUR/m² per month, plus utilities — a highly competitive offer considering the size, quality, and flexibility of the space.
This office space is the perfect choice for companies seeking a modern, representative, and adaptable work environment to grow their business with comfort and efficiency.
If this property is listed at a lower price on another website, the same price applies with us.
For additional information or to arrange a viewing, please contact us.
Agency commission applies.
Contact for this property: Ivan, +385 91 288 0082
Location
Real estate nearby
See more-
- Sale
- Office spaces
- Zagreb
Zagreb, Trešnjevka, 69m2 commercial space for sale
69 m2
250.000 €
-
- Sale
- Office spaces
- Zagreb
Modern commercial space, 370 m2, for sale – Borovje, Zagreb
350 m2
1.200.000 €
-
- Sale
- Office spaces
- Zagreb
Zagreb, strict center, business building for hotel for sale
1000 m2
3.900.000 €