Osnovno
- Grad : Kaštel Stari
- Bruto površina : 58 m2
- Neto površina : 55 m2
- Godina izgradnje : 2026
- Broj soba : 3
- Kupaonice : 1
- Kat : 1
- Broj etaža : 1
- Klima uređaj
- U stambenoj zgradi
- Blizu mora
- Terasa
- Novogradnja
- Orijentacija : Sjever-Jug
- Grijanje : Na struju
- Stanje : Kompletno uređeno
Više informacija
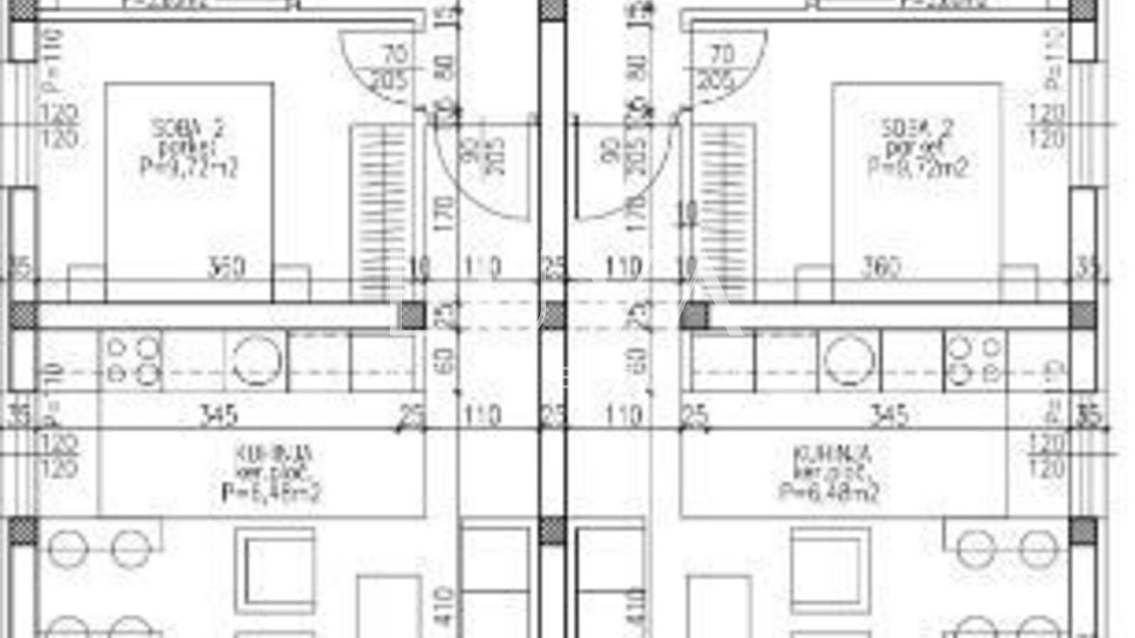
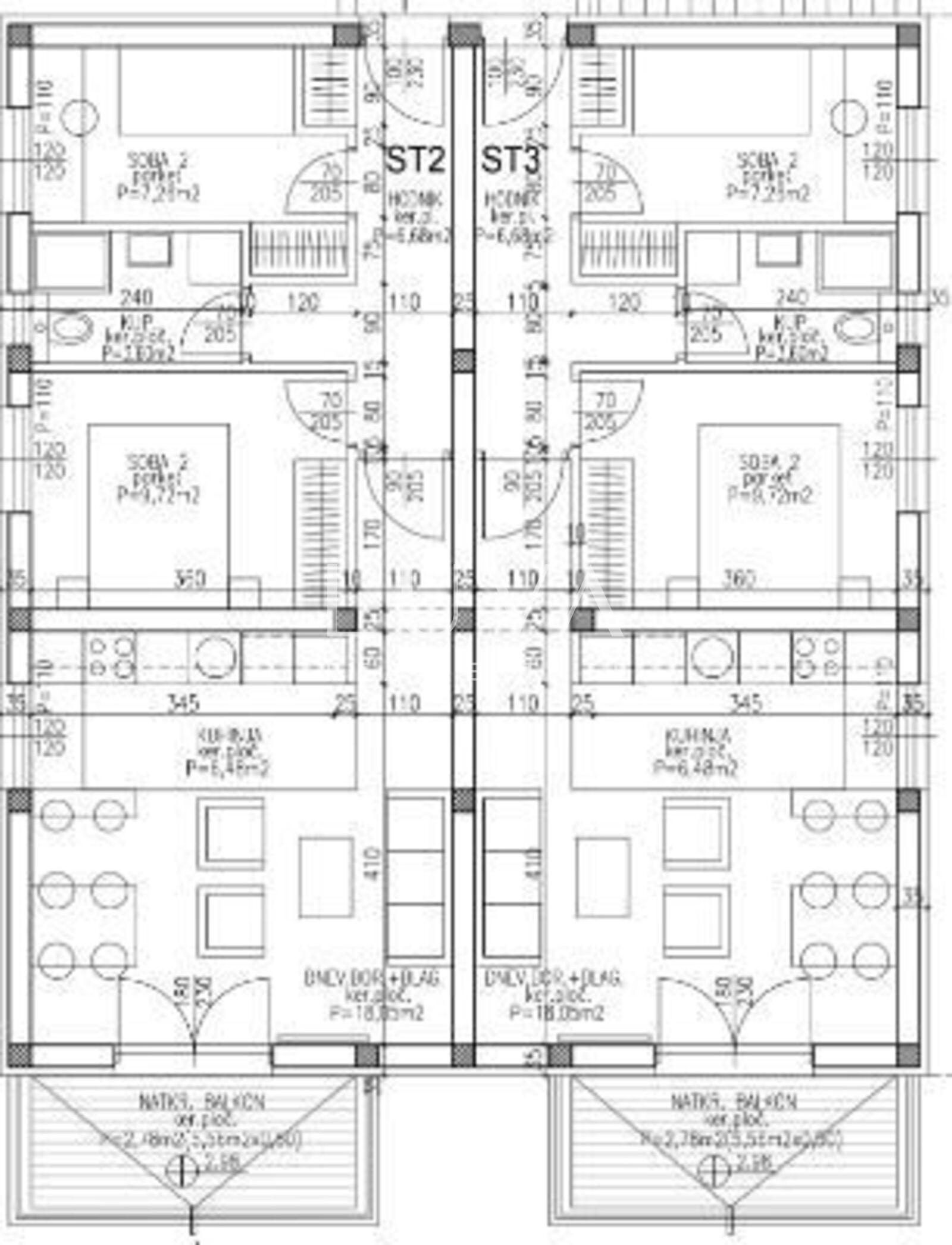
Prodaje se stan u novogradnji u mjestu Kaštel Starom, stan je trosoban, te dolazi sa parkingom mjestom i natkrivenom terasom:
Karakteristike Stana:
Dnevni boravak + blagovaonica = 18.05 m2
Kuhinja = 6.50 m2
Master soba = 9.72 m2
Spavaća soba = 7.26 m2
Kupaonica = 3.60 m2
Hodnik = 6.68 m2
Natkrivena terasa = 6 m2
Parking = 16.00 m2
Elegantno stanovanje u Kaštel Starom
U mirnom dijelu Kaštel Starog smješten je moderan trosoban stan u kvalitetnoj novogradnji, osmišljen za suvremen i ugodan stil života. Prostor odiše funkcionalnošću i elegancijom, uz naglasak na udobnost i otvorenost prema vanjskom okruženju.
Prostran interijer s pogledom na more
Stan raspolaže prostranim dnevnim boravkom površine 18,05 m², koji zahvaljujući velikim otvorima pruža obilje prirodnog svjetla i pogled prema moru. Dnevni prostor povezan je s natkrivenim balkonom od 6 m², idealnim za opuštanje i uživanje u mediteranskoj atmosferi tijekom cijele godine.
Sigurna investicija s dodatnom vrijednošću
Uz stan dolazi i privatno parkirno mjesto površine 16 m², što dodatno podiže razinu komfora. Ova nekretnina predstavlja izvrsnu priliku kako za ugodan obiteljski život, tako i za dugoročnu ili turističku investiciju na iznimno traženoj lokaciji.
Za sva dodatna pitanja i razgled nekretnine stojimo Vam na raspolaganju.
U slučaju posla posredovanja naše agencije postoji obveza plaćanja agencijske provizije.
Za ovu nekretninu je kontakt: Jasmina, +385 95 388 4813
Lokacija
Nekretnine u blizini
Pogledajte više-
- Prodaja
- Luksuzne vile
- Kaštel Stari
Kaštel Stari, Split, moderna luksuzna vila s bazenom na prodaju
245 m2
1.100.000 €
-
- Prodaja
- Kuće
- Kaštel Novi
Kaštel Novi, Rudine, moderna vila s bazenom i pogledom na more
260 m2
890.000 €
-
- Prodaja
- Kuće
- Stari Grad
Hvar, Stari Grad, kamena kuća uz more na prodaju
70 m2
900.000 €